Светотехнический портал SvetoZone.ru Информационный портал по светотехнической отрасли, представленной на российском рынке.
E-mail (Регистрация) Пароль (Забыли?)
На главную страницу

SvetoZone.ru / Проекты освещения

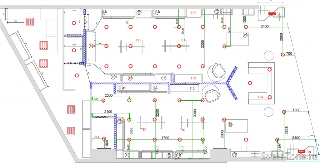
Освещение магазина Small & Tall в ТЦ "Лотте Плаза".

Освещение магазина Small & Tall в ТЦ "Лотте Плаза".
Тип: Освещение магазинов, show-room'ов
Компания: Галактика
Город: Москва
Добавлен: 11 марта 2015 г.
В магазине Small & Tall в ТЦ "Лотте Плаза", нашей командой была проведена работа по освещению.
В основном зале были использованы светильники BX 522-017 и лампы BB 121 PAR 30.
Подсобное помещение было освещено с помощью светильников с люминисцентными лампами CCFL.
Основное Каталог светотехники Сервисы